Gallery
Overview

3D Tour
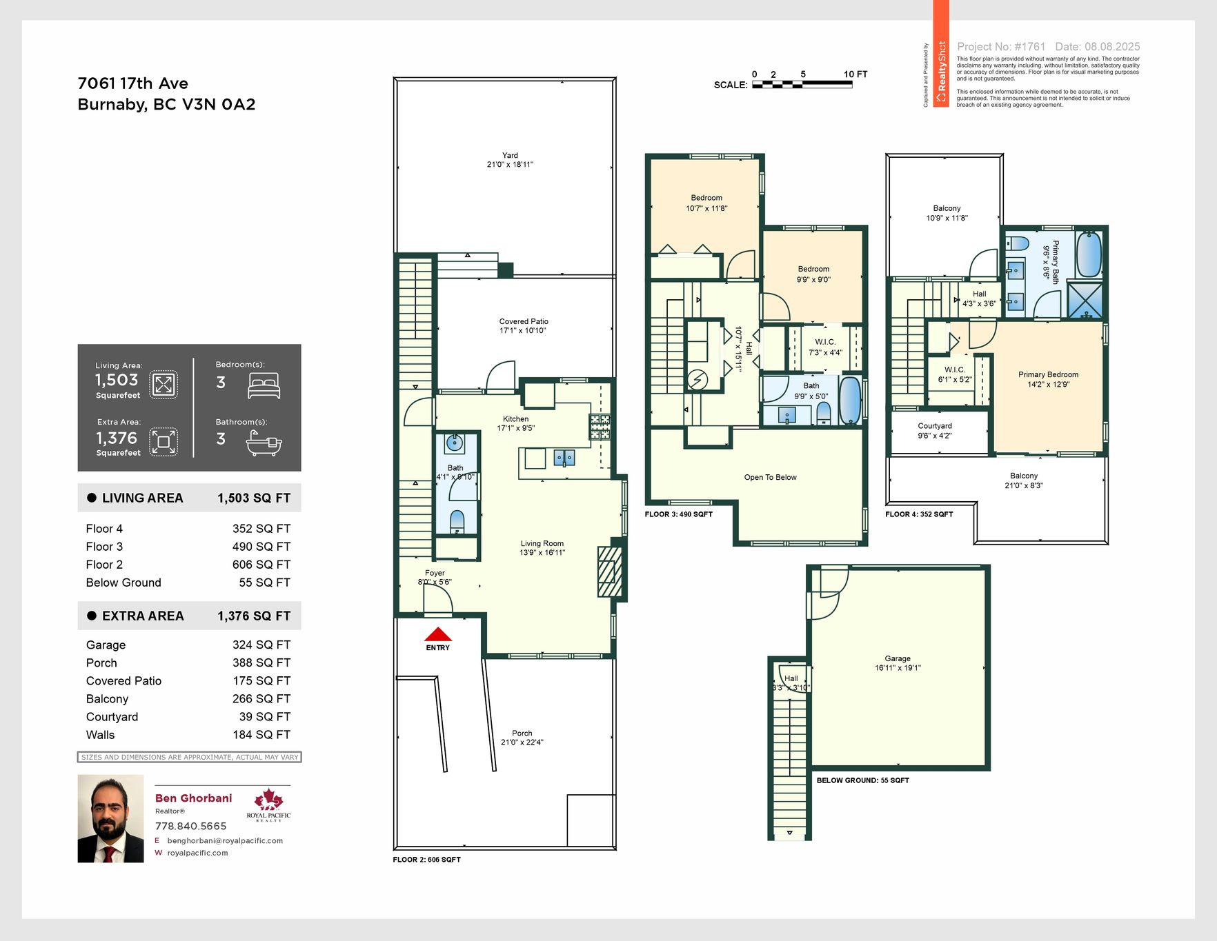
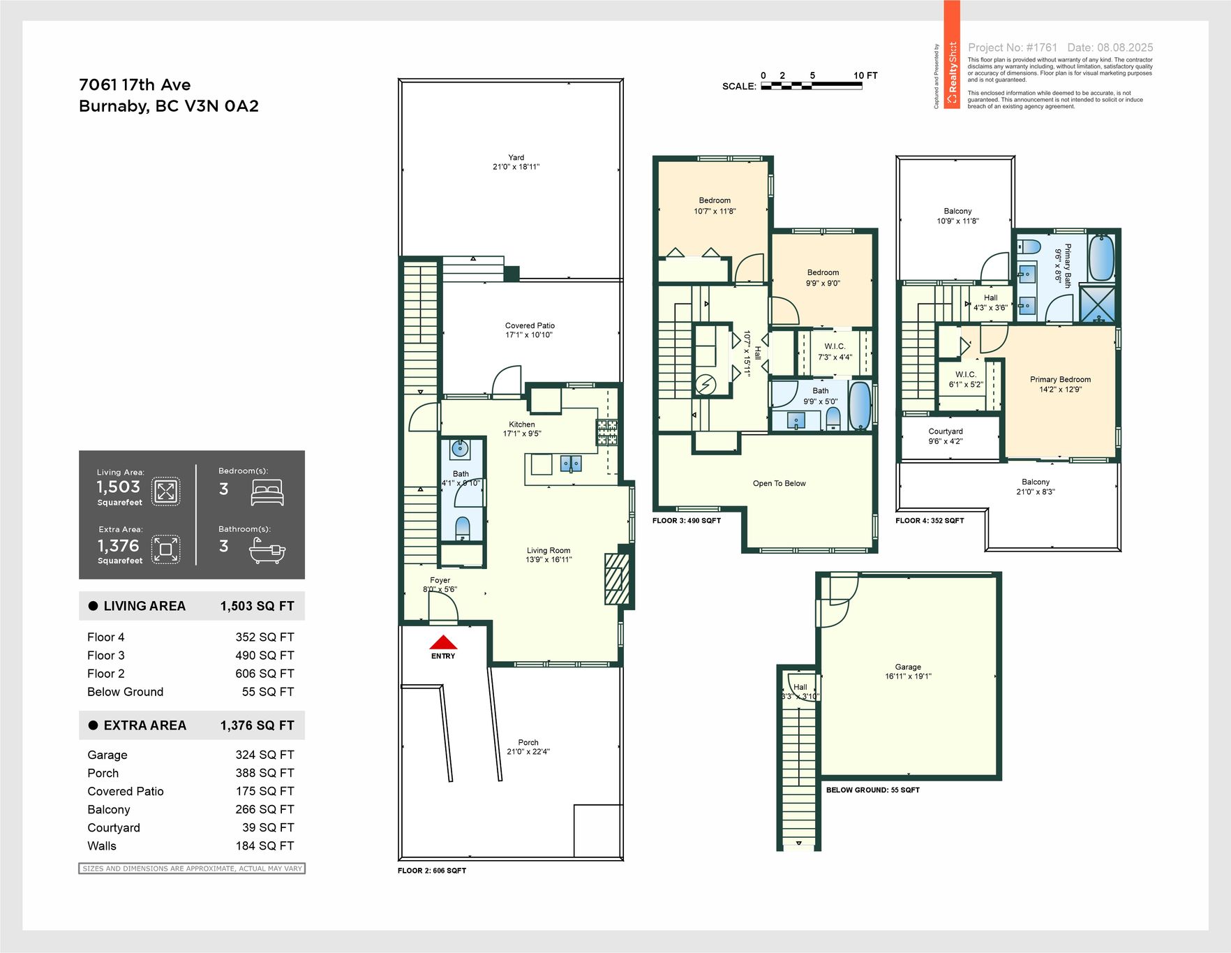
Floor Plans
Videos
Presented by

Benyamin Ghorbani Kalkhajeh
Royal Pacific Lions Gate Realty Ltd.
(778) 840-5665
benghorbani@royalpacific.com
DRE: p71875